Top.Mail.Ru

Пятницкое шоссе, д. 43, к. 1

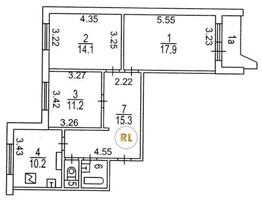
База каталог, Кол-во помещений: 203, П-44, Москва, Митино, Площадь парковки: 0, Пассажирский лифт: 3, От метро: 390, Северо-Западный, нет, Наименьшее кол-во этажей: 2, Наибольшее кол-во этажей: 17, Пятницкое шоссе, Кол-во подъездов: 3, Год ввода в эксплуатацию: 1992, Кол-во нежилых помещений: 0, 3-комн, Кол-во жилых помещений: 203, дом 43, корпус 1, да, да, да, да, да, да, Грузовых лифтов: 3, Год постройки: 1992, Пятницкое шоссе, 37.349452, 55.856538
Свяжитесь со мной на счет цены
10 дн.
T55S856538L37S349452T

На карте


Условия сделки

Источник


Старт продаж

Возможно заинтересует