Top.Mail.Ru

Пятницкое шоссе, д. 41, к. 1

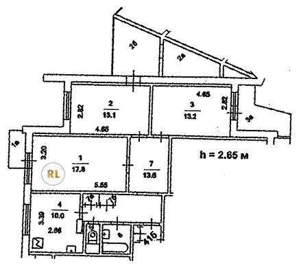
База каталог, Кол-во подъездов: 3, Имеется, П-3/17, Москва, Митино, Площадь парковки: 0, Пассажирский лифт: 3, От метро: 280, Северо-Западный, нет, Наименьшее кол-во этажей: 17, Наибольшее кол-во этажей: 17, Пятницкое шоссе, Кол-во помещений: 206, Кол-во нежилых помещений: 2, Год ввода в эксплуатацию: 1992, 3-комн, Кол-во жилых помещений: 204, Не присвоен, дом 41, корпус 1, да, да, да, да, да, да, Имеется, Грузовых лифтов: 3, Год постройки: 1992, Пятницкое шоссе, 37.350791, 55.856573
Свяжитесь со мной на счет цены
10 дн.
T55S856573L37S350791T

На карте


Условия сделки

Источник


Старт продаж

Возможно заинтересует