Top.Mail.Ru

улица Вешних Вод, д. 2, к. 2

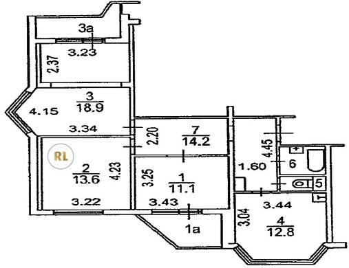
База каталог, Кол-во подъездов: 4, Имеется, П-44T, Москва, Ярославский, Площадь парковки: 0, Пассажирский лифт: 4, От метро: 2860, Северо-Восточный, нет, Наименьшее кол-во этажей: 17, Наибольшее кол-во этажей: 17, Бабушкинская, Кол-во помещений: 263, Кол-во нежилых помещений: 4, Год ввода в эксплуатацию: 2000, 3-комн, Кол-во жилых помещений: 259, Не присвоен, дом 2, корпус 2, нет, да, нет, нет, нет, нет, Имеется, Грузовых лифтов: 4, Год постройки: 2000, улица Вешних Вод, 37.698708, 55.857180
Свяжитесь со мной на счет цены
10 дн.
T55S857180L37S698708T

На карте


Условия сделки

Источник


Старт продаж

Возможно заинтересует