Top.Mail.Ru

улица Фомичевой, д. 16, к. 2

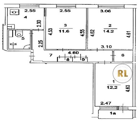
База каталог, Кол-во подъездов: 8, Имеется, II-49Д, Москва, Северное Тушино, Площадь парковки: 0, Пассажирский лифт: 8, От метро: 390, Северо-Западный, нет, Наименьшее кол-во этажей: 9, Наибольшее кол-во этажей: 9, Планерная, Кол-во помещений: 287, Кол-во нежилых помещений: 1, Год ввода в эксплуатацию: 1967, 3-комн, Кол-во жилых помещений: 286, Не присвоен, дом 16, корпус 2, да, да, да, да, да, да, Имеется, Грузовых лифтов: 0, Год постройки: 1967, улица Фомичевой, 37.439607, 55.857210
Свяжитесь со мной на счет цены
10 дн.
T55S857210L37S439607T

На карте


Условия сделки

Источник


Старт продаж

Возможно заинтересует