Top.Mail.Ru

Солнечногорская ул., д. 3

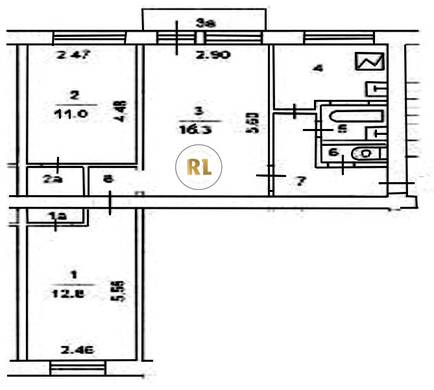
База каталог, Кол-во подъездов: 4, I-511, Москва, Головинский, Площадь парковки: 0, Пассажирский лифт: 0, От метро: 2220, Северный, нет, Наименьшее кол-во этажей: 5, Наибольшее кол-во этажей: 5, Коптево, Кол-во помещений: 80, Кол-во нежилых помещений: 0, Год ввода в эксплуатацию: 1963, 3-комн, Кол-во жилых помещений: 80, G, дом 3, нет, да, да, нет, нет, нет, Грузовых лифтов: 0, Год постройки: 1963, Солнечногорская улица, 37.514329, 55.857412
Свяжитесь со мной на счет цены
10 дн.
T55S857412L37S514329T

На карте


Условия сделки

Источник


Старт продаж

Возможно заинтересует