Top.Mail.Ru

Отрадная ул., д. 7

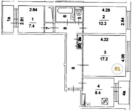
База каталог, Кол-во подъездов: 4, П-30, Москва, Отрадное, Площадь парковки: 0, Пассажирский лифт: 8, От метро: 930, Северо-Восточный, нет, Наименьшее кол-во этажей: 12, Наибольшее кол-во этажей: 12, Отрадное, Кол-во помещений: 180, Кол-во нежилых помещений: 4, Год ввода в эксплуатацию: 1984, 3-комн, Кол-во жилых помещений: 176, D, дом 7, нет, да, да, да, да, да, Имеется, Грузовых лифтов: 0, Год постройки: 1984, Отрадная улица, 37.610089, 55.857462
Свяжитесь со мной на счет цены
10 дн.
T55S857462L37S610089T

На карте


Условия сделки

Источник


Старт продаж

Возможно заинтересует