Top.Mail.Ru

Солнечногорская ул., д. 6, к. 1

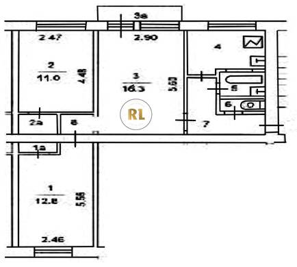
База каталог, Кол-во подъездов: 4, I-511, Москва, Головинский, Площадь парковки: 0, Пассажирский лифт: 0, От метро: 2250, Северный, нет, Наименьшее кол-во этажей: 5, Наибольшее кол-во этажей: 5, Коптево, Кол-во помещений: 86, Кол-во нежилых помещений: 7, Год ввода в эксплуатацию: 1960, 3-комн, Кол-во жилых помещений: 79, G, дом 6, корпус 1, нет, да, да, нет, нет, нет, Грузовых лифтов: 0, Год постройки: 1960, Солнечногорская улица, 37.515910, 55.857508
Свяжитесь со мной на счет цены
10 дн.
T55S857508L37S515910T

На карте


Условия сделки

Источник


Старт продаж

Возможно заинтересует