Top.Mail.Ru

Игарский проезд, д. 17

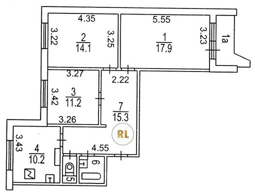
База каталог, Кол-во подъездов: 4, Отсутствует, П-44, Москва, Свиблово, Площадь парковки: 0, Пассажирский лифт: 8, От метро: 1010, Северо-Восточный, нет, Наименьшее кол-во этажей: 17, Наибольшее кол-во этажей: 17, Свиблово, Кол-во помещений: 268, Кол-во нежилых помещений: 2, Год ввода в эксплуатацию: 1997, 3-комн, Кол-во жилых помещений: 266, Не присвоен, дом 17, нет, да, да, да, да, да, Имеется, Грузовых лифтов: 0, Год постройки: 1997, Игарский проезд, 37.637030, 55.857740
Свяжитесь со мной на счет цены
10 дн.
T55S857740L37S637030T

На карте


Условия сделки

Источник


Старт продаж

Возможно заинтересует