Top.Mail.Ru

Отрадная ул., д. 5

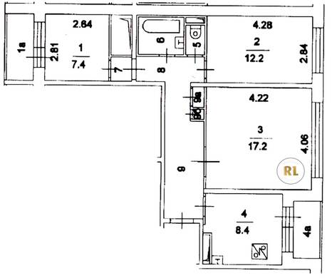
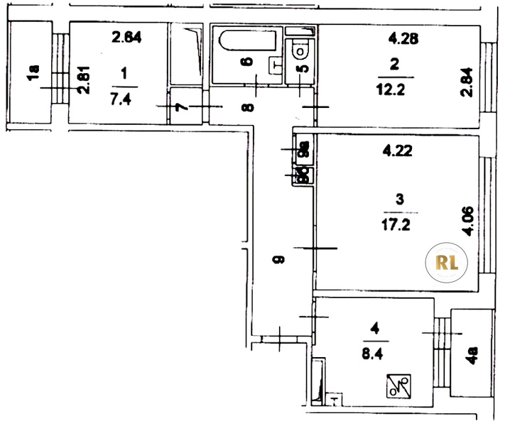
База каталог, Кол-во подъездов: 6, П-30, Москва, Отрадное, Площадь парковки: 0, Пассажирский лифт: 12, От метро: 630, Северо-Восточный, нет, Наименьшее кол-во этажей: 12, Наибольшее кол-во этажей: 12, Отрадное, Кол-во помещений: 287, Кол-во нежилых помещений: 2, Год ввода в эксплуатацию: 1982, 3-комн, Кол-во жилых помещений: 285, D, дом 5, нет, да, да, да, да, да, Имеется, Грузовых лифтов: 0, Год постройки: 1982, Отрадная улица, 37.607224, 55.858372
Свяжитесь со мной на счет цены
10 дн.
T55S858372L37S607224T

На карте


Условия сделки

Источник


Старт продаж

Возможно заинтересует