Top.Mail.Ru

проезд Якушкина, д. 2

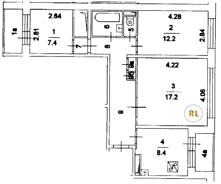
База каталог, Кол-во подъездов: 5, П-30, Москва, Отрадное, Площадь парковки: 0, Пассажирский лифт: 10, От метро: 710, Северо-Восточный, нет, Наименьшее кол-во этажей: 12, Наибольшее кол-во этажей: 12, Отрадное, Кол-во помещений: 239, Кол-во нежилых помещений: 6, Год ввода в эксплуатацию: 1982, 3-комн, Кол-во жилых помещений: 233, Не присвоен, дом 2, нет, да, да, да, да, да, Имеется, Грузовых лифтов: 0, Год постройки: 1982, проезд Якушкина, 37.610098, 55.858382
Свяжитесь со мной на счет цены
10 дн.
T55S858382L37S610098T

На карте


Условия сделки

Источник


Старт продаж

Возможно заинтересует