Top.Mail.Ru

проезд Якушкина, д. 1

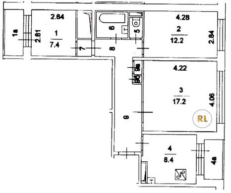
База каталог, Кол-во подъездов: 5, П-30, Москва, Отрадное, Площадь парковки: 0, Пассажирский лифт: 10, От метро: 650, Северо-Восточный, нет, Наименьшее кол-во этажей: 12, Наибольшее кол-во этажей: 12, Отрадное, Кол-во помещений: 236, Кол-во нежилых помещений: 2, Год ввода в эксплуатацию: 1982, 3-комн, Кол-во жилых помещений: 234, Не присвоен, дом 1, нет, да, да, да, да, да, Имеется, Грузовых лифтов: 0, Год постройки: 1982, проезд Якушкина, 37.608958, 55.858574
Свяжитесь со мной на счет цены
10 дн.
T55S858574L37S608958T

На карте


Условия сделки

Источник


Старт продаж

Возможно заинтересует