Top.Mail.Ru

Каргопольская ул., д. 2

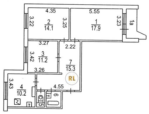
База каталог, Кол-во помещений: 406, Отсутствует, П-44-1/17, Москва, Отрадное, Площадь парковки: 0, Пассажирский лифт: 6, От метро: 1100, Северо-Восточный, нет, Наименьшее кол-во этажей: 17, Наибольшее кол-во этажей: 17, Отрадное, Кол-во подъездов: 6, Год ввода в эксплуатацию: 1983, Кол-во нежилых помещений: 0, 3-комн, Кол-во жилых помещений: 406, дом 2, нет, да, да, да, да, нет, Отсутствует, Грузовых лифтов: 6, Год постройки: 1983, Каргопольская улица, 37.591126, 55.858685
Свяжитесь со мной на счет цены
10 дн.
T55S858685L37S591126T

На карте


Условия сделки

Источник


Старт продаж

Возможно заинтересует