Top.Mail.Ru

Фестивальная ул., д. 22, к. 2

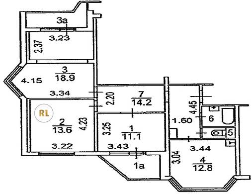
База каталог, Кол-во подъездов: 5, Имеется, П-44T, Москва, Ховрино, Площадь парковки: 0, Пассажирский лифт: 5, От метро: 1870, Северный, нет, Наименьшее кол-во этажей: 0, Наибольшее кол-во этажей: 17, Речной вокзал, Кол-во помещений: 0, Кол-во нежилых помещений: 0, Год ввода в эксплуатацию: 2003, 3-комн, Кол-во жилых помещений: 0, Не присвоен, дом 22, корпус 2, нет, да, да, да, нет, нет, Имеется, Грузовых лифтов: 5, Год постройки: 2003, Фестивальная улица, 37.500118, 55.858897
Свяжитесь со мной на счет цены
10 дн.
T55S858897L37S500118T

На карте


Условия сделки

Источник


Старт продаж

Возможно заинтересует