Top.Mail.Ru

Бескудниковский бульвар, д. 6, к. 3

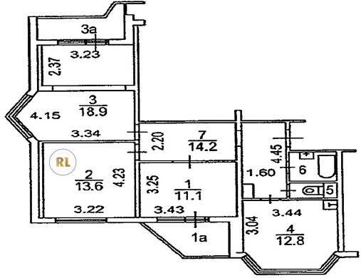
База каталог, Кол-во подъездов: 7, П-44T, Москва, Бескудниковский, Площадь парковки: 0, Пассажирский лифт: 7, От метро: 288, Северный, нет, Наименьшее кол-во этажей: 17, Наибольшее кол-во этажей: 17, Верхние Лихоборы, Кол-во помещений: 461, Кол-во нежилых помещений: 13, Год ввода в эксплуатацию: 2001, 3-комн, Кол-во жилых помещений: 448, Не присвоен, дом 6, корпус 3, да, да, да, да, да, да, Грузовых лифтов: 7, Год постройки: 2001, Бескудниковский бульвар, 37.563063, 55.858923
Свяжитесь со мной на счет цены
10 дн.
T55S858923L37S563063T

На карте


Условия сделки

Источник


Старт продаж

Возможно заинтересует