Top.Mail.Ru

улица Санникова, д. 1

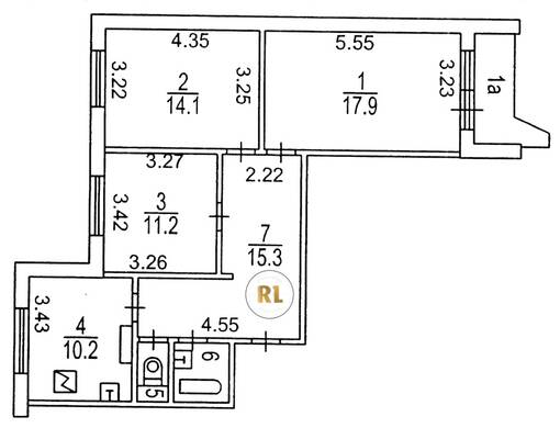
База каталог, Кол-во подъездов: 6, Имеется, П-44, Москва, Отрадное, Пассажирский лифт: 6, От метро: 960, Северо-Восточный, да, Наименьшее кол-во этажей: 17, Наибольшее кол-во этажей: 17, Отрадное, Кол-во помещений: 408, Кол-во нежилых помещений: 2, Год ввода в эксплуатацию: 1984, 3-комн, Кол-во жилых помещений: 406, дом 1, нет, да, да, да, да, да, Имеется, Грузовых лифтов: 6, Год постройки: 1983, улица Санникова, 37.594953, 55.859054
Свяжитесь со мной на счет цены
10 дн.
T55S859054L37S594953T

На карте


Условия сделки

Источник


Старт продаж

Возможно заинтересует