Top.Mail.Ru

улица Летчика Бабушкина, д. 7

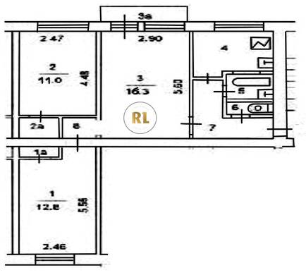
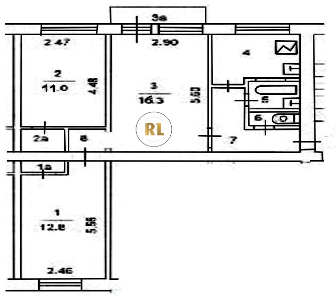
База каталог, Кол-во подъездов: 4, Отсутствует, I-511, Москва, Бабушкинский, Площадь парковки: 0, Пассажирский лифт: 0, От метро: 1380, Северо-Восточный, нет, Наименьшее кол-во этажей: 5, Наибольшее кол-во этажей: 5, Свиблово, Кол-во помещений: 67, Кол-во нежилых помещений: 3, Год ввода в эксплуатацию: 1966, 3-комн, Кол-во жилых помещений: 64, Не присвоен, дом 7, нет, да, да, да, да, нет, Отсутствует, Грузовых лифтов: 0, Год постройки: 1966, улица Летчика Бабушкина, 37.672980, 55.859200
Свяжитесь со мной на счет цены
10 дн.
T55S859200L37S672980T

На карте


Условия сделки

Источник


Старт продаж

Возможно заинтересует