Top.Mail.Ru

Отрадная ул., д. 2

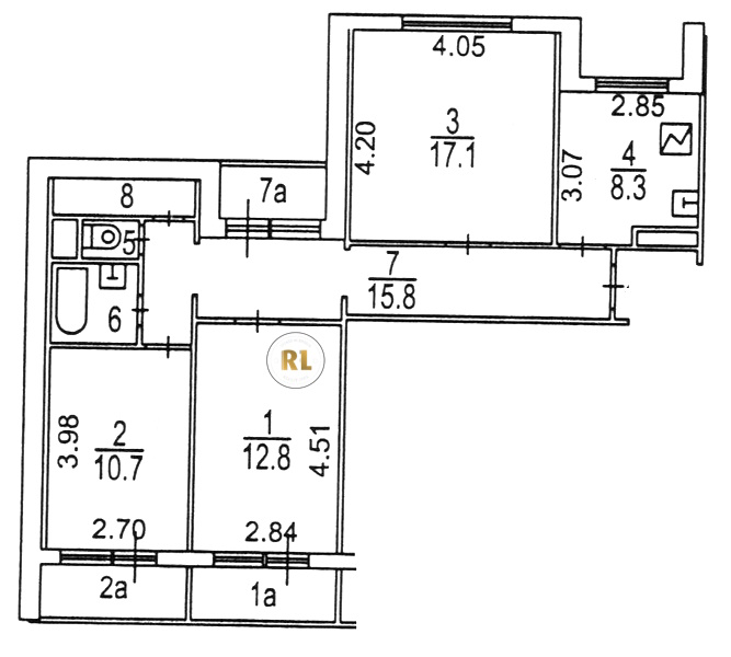
База каталог, Кол-во подъездов: 5, П-55, Москва, Отрадное, Площадь парковки: 0, Пассажирский лифт: 10, От метро: 400, Северо-Восточный, нет, Наименьшее кол-во этажей: 14, Наибольшее кол-во этажей: 14, Отрадное, Кол-во помещений: 240, Кол-во нежилых помещений: 7, Год ввода в эксплуатацию: 1995, 3-комн, Кол-во жилых помещений: 233, D, дом 2, да, да, да, да, да, да, Имеется, Грузовых лифтов: 0, Год постройки: 1995, Отрадная улица, 37.602058, 55.859261
Свяжитесь со мной на счет цены
10 дн.
T55S859261L37S602058T

На карте


Условия сделки

Источник


Старт продаж

Возможно заинтересует