Top.Mail.Ru

Туристская ул., д. 33

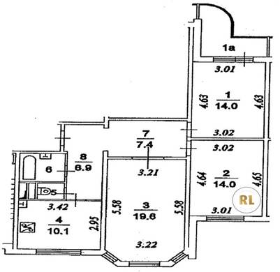
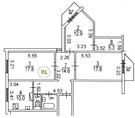
База каталог, Кол-во подъездов: 4, П-ЗМ-2/16, Москва, Северное Тушино, Площадь парковки: 0, Пассажирский лифт: 8, От метро: 1290, Северо-Западный, нет, Наименьшее кол-во этажей: 17, Наибольшее кол-во этажей: 17, Планерная, Кол-во помещений: 328, Кол-во нежилых помещений: 8, Год ввода в эксплуатацию: 2004, 3-комн, Кол-во жилых помещений: 320, Не присвоен, дом 33, нет, да, да, да, да, нет, Имеется, Грузовых лифтов: 0, Год постройки: 2004, Туристская улица, 37.419009, 55.859534
Свяжитесь со мной на счет цены
10 дн.
T55S859534L37S419009T

На карте


Условия сделки

Источник


Старт продаж

Возможно заинтересует