Top.Mail.Ru

Фестивальная ул., д. 22, к. 1

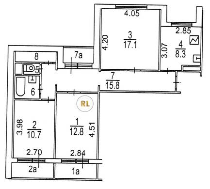
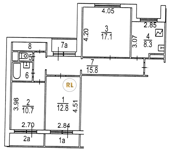
База каталог, Кол-во подъездов: 3, Имеется, П-55, Москва, Ховрино, Площадь парковки: 0, Пассажирский лифт: 3, От метро: 1770, Северный, нет, Наименьшее кол-во этажей: 0, Наибольшее кол-во этажей: 10, Речной вокзал, Кол-во помещений: 0, Кол-во нежилых помещений: 0, Год ввода в эксплуатацию: 2003, 3-комн, Кол-во жилых помещений: 0, Не присвоен, дом 22, корпус 1, нет, да, да, да, нет, нет, Имеется, Грузовых лифтов: 3, Год постройки: 2003, Фестивальная улица, 37.499839, 55.859670
Свяжитесь со мной на счет цены
10 дн.
T55S859670L37S499839T

На карте


Условия сделки

Источник


Старт продаж

Возможно заинтересует