Top.Mail.Ru

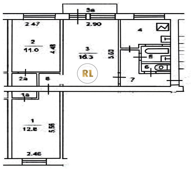
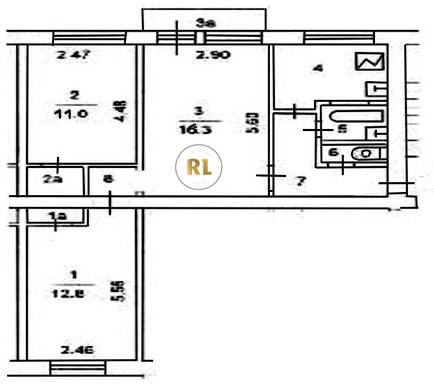
Енисейская ул., д. 3, к. 2

База каталог, Кол-во подъездов: 4, Отсутствует, I-511, Москва, Бабушкинский, Площадь парковки: 0, Пассажирский лифт: 0, От метро: 520, Северо-Восточный, нет, Наименьшее кол-во этажей: 5, Наибольшее кол-во этажей: 5, Свиблово, Кол-во помещений: 79, Кол-во нежилых помещений: 3, Год ввода в эксплуатацию: 1963, 3-комн, Кол-во жилых помещений: 76, Не присвоен, дом 3, корпус 2, да, да, да, да, да, да, Отсутствует, Грузовых лифтов: 0, Год постройки: 1963, Енисейская улица, 37.656299, 55.859680
Свяжитесь со мной на счет цены
10 дн.
T55S859680L37S656299T

На карте


Условия сделки

Источник


Старт продаж

Возможно заинтересует