Top.Mail.Ru

Бескудниковский бульвар, д. 8, к. 1

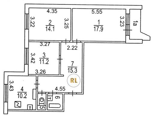
База каталог, Кол-во подъездов: 3, Имеется, П-44, Москва, Восточное Дегунино, Площадь парковки: 0, Пассажирский лифт: 3, От метро: 530, Северный, нет, Наименьшее кол-во этажей: 14, Наибольшее кол-во этажей: 14, Верхние Лихоборы, Кол-во помещений: 165, Кол-во нежилых помещений: 9, Год ввода в эксплуатацию: 2000, 3-комн, Кол-во жилых помещений: 156, Не присвоен, дом 8, корпус 1, да, да, да, да, да, да, Имеется, Грузовых лифтов: 3, Год постройки: 2000, Бескудниковский бульвар, 37.564617, 55.859807
Свяжитесь со мной на счет цены
10 дн.
T55S859807L37S564617T

На карте


Условия сделки

Источник


Старт продаж

Возможно заинтересует