Top.Mail.Ru

Дубнинская ул., д. 6, к. 1

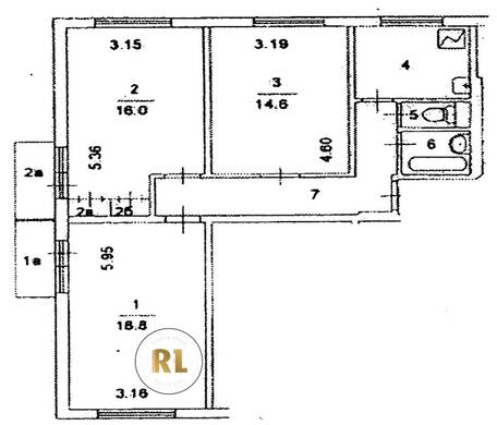
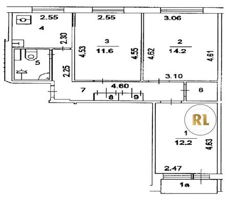
База каталог, Кол-во подъездов: 10, Отсутствует, II-49Д, Москва, Восточное Дегунино, Площадь парковки: 0, Пассажирский лифт: 10, От метро: 1030, Северный, нет, Наименьшее кол-во этажей: 9, Наибольшее кол-во этажей: 9, Верхние Лихоборы, Кол-во помещений: 357, Кол-во нежилых помещений: 1, Год ввода в эксплуатацию: 1971, 3-комн, Кол-во жилых помещений: 356, Не присвоен, дом 6, корпус 1, нет, да, да, да, да, да, Имеется, Грузовых лифтов: 0, Год постройки: 1971, Дубнинская улица, 37.570132, 55.859867
Свяжитесь со мной на счет цены
10 дн.
T55S859867L37S570132T

На карте


Условия сделки

Источник


Старт продаж

Возможно заинтересует