Top.Mail.Ru

улица Декабристов, д. 32

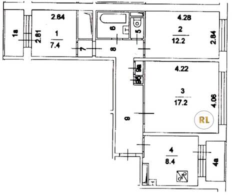
База каталог, Кол-во подъездов: 4, П-30, Москва, Отрадное, Площадь парковки: 0, Пассажирский лифт: 8, От метро: 660, Северо-Восточный, нет, Наименьшее кол-во этажей: 12, Наибольшее кол-во этажей: 12, Отрадное, Кол-во помещений: 191, Кол-во нежилых помещений: 1, Год ввода в эксплуатацию: 1979, 3-комн, Кол-во жилых помещений: 190, Не присвоен, дом 32, нет, да, да, да, да, да, Имеется, Грузовых лифтов: 0, Год постройки: 1979, улица Декабристов, 37.612829, 55.860085
Свяжитесь со мной на счет цены
10 дн.
T55S860085L37S612829T

На карте


Условия сделки

Источник


Старт продаж

Возможно заинтересует