Top.Mail.Ru

Фестивальная ул., д. 51, к. 1

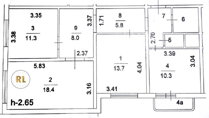
База каталог, Кол-во подъездов: 1, Отсутствует, КОПЭ, Москва, Ховрино, Площадь парковки: 195, Пассажирский лифт: 2, От метро: 1440, Северный, да, Наименьшее кол-во этажей: 22, Наибольшее кол-во этажей: 22, Речной вокзал, Кол-во помещений: 88, Кол-во нежилых помещений: 3, Год ввода в эксплуатацию: 2003, 3-комн, Кол-во жилых помещений: 85, E, дом 51, корпус 1, нет, да, да, да, да, нет, Имеется, Грузовых лифтов: 1, Год постройки: 2003, Фестивальная улица, 37.493677, 55.860534
Свяжитесь со мной на счет цены
10 дн.
T55S860534L37S493677T

На карте


Условия сделки

Источник


Старт продаж

Возможно заинтересует