Top.Mail.Ru

улица Санникова, д. 7

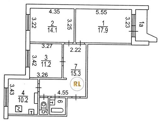
База каталог, Кол-во подъездов: 4, Отсутствует, П-44, Москва, Отрадное, Площадь парковки: 0, Пассажирский лифт: 4, От метро: 560, Северо-Восточный, нет, Наименьшее кол-во этажей: 17, Наибольшее кол-во этажей: 17, Отрадное, Кол-во помещений: 271, Кол-во нежилых помещений: 0, Год ввода в эксплуатацию: 1983, 3-комн, Кол-во жилых помещений: 271, В+, дом 7, да, да, да, да, да, да, Отсутствует, Грузовых лифтов: 4, Год постройки: 1983, улица Санникова, 37.596471, 55.860600
Свяжитесь со мной на счет цены
10 дн.
T55S860600L37S596471T

На карте


Условия сделки

Источник


Старт продаж

Возможно заинтересует