Top.Mail.Ru

Солнечногорская ул., д. 15, к. 1

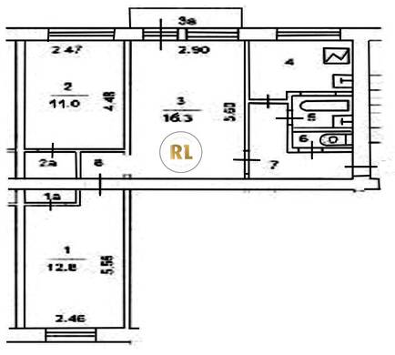
База каталог, Кол-во подъездов: 5, I-511, Москва, Головинский, Площадь парковки: 0, Пассажирский лифт: 0, От метро: 2360, Северный, нет, Наименьшее кол-во этажей: 5, Наибольшее кол-во этажей: 5, Селигерская, Кол-во помещений: 95, Кол-во нежилых помещений: 3, Год ввода в эксплуатацию: 1961, 3-комн, Кол-во жилых помещений: 92, F, дом 15, корпус 1, нет, да, да, нет, нет, нет, Грузовых лифтов: 0, Год постройки: 1961, Солнечногорская улица, 37.519234, 55.860752
Свяжитесь со мной на счет цены
10 дн.
T55S860752L37S519234T

На карте


Условия сделки

Источник


Старт продаж

Возможно заинтересует