Top.Mail.Ru

Каргопольская ул., д. 6

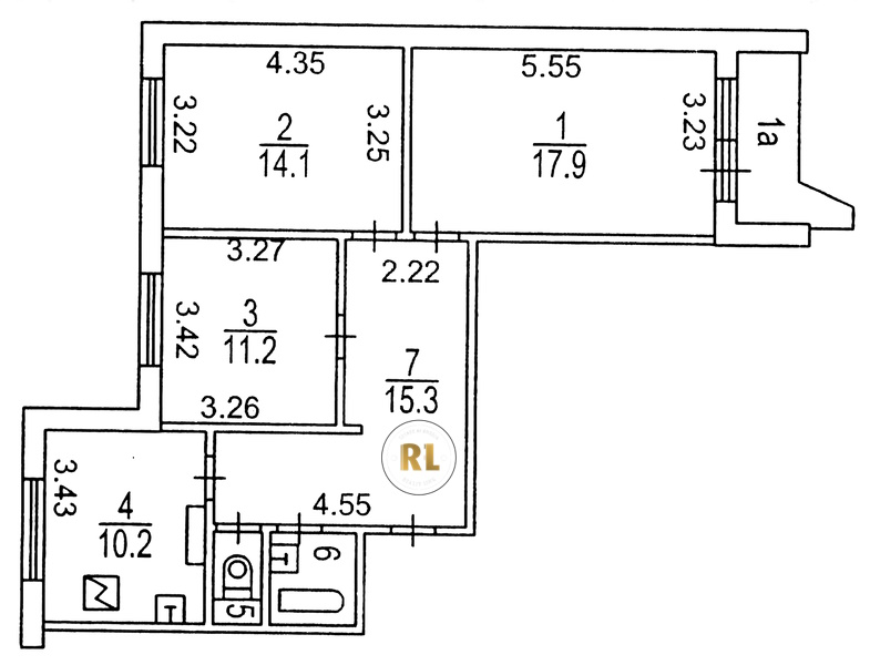
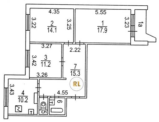
База каталог, Кол-во подъездов: 6, Имеется, П-44, Москва, Отрадное, Площадь парковки: 0, Пассажирский лифт: 6, От метро: 1070, Северо-Восточный, нет, Наименьшее кол-во этажей: 17, Наибольшее кол-во этажей: 17, Отрадное, Кол-во помещений: 416, Кол-во нежилых помещений: 10, Год ввода в эксплуатацию: 1989, 3-комн, Кол-во жилых помещений: 406, Не присвоен, дом 6, нет, да, да, да, да, да, Имеется, Грузовых лифтов: 6, Год постройки: 1989, Каргопольская улица, 37.590973, 55.861135
Свяжитесь со мной на счет цены
10 дн.
T55S861135L37S590973T

На карте


Условия сделки

Источник


Старт продаж

Возможно заинтересует