Top.Mail.Ru

улица Санникова, д. 9, к. 1

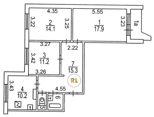
База каталог, Кол-во подъездов: 4, Отсутствует, П-44, Москва, Отрадное, Площадь парковки: 0, Пассажирский лифт: 4, От метро: 550, Северо-Восточный, нет, Наименьшее кол-во этажей: 0, Наибольшее кол-во этажей: 17, Отрадное, Кол-во помещений: 242, Кол-во нежилых помещений: 1, Год ввода в эксплуатацию: 1983, 3-комн, Кол-во жилых помещений: 241, В+, дом 9, корпус 1, да, да, да, да, да, да, Отсутствует, Грузовых лифтов: 4, Год постройки: 1983, улица Санникова, 37.596408, 55.861277
Свяжитесь со мной на счет цены
10 дн.
T55S861277L37S596408T

На карте


Условия сделки

Источник


Старт продаж

Возможно заинтересует