Top.Mail.Ru

Солнечногорская ул., д. 22

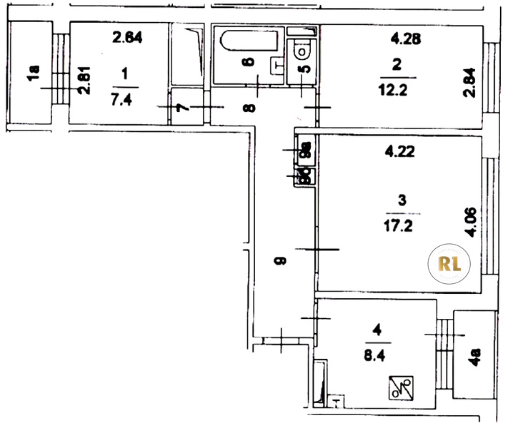
База каталог, Кол-во подъездов: 3, П-30, Москва, Головинский, Площадь парковки: 0, Пассажирский лифт: 6, От метро: 2080, Северный, нет, Наименьшее кол-во этажей: 12, Наибольшее кол-во этажей: 12, Селигерская, Кол-во помещений: 144, Кол-во нежилых помещений: 2, Год ввода в эксплуатацию: 1978, 3-комн, Кол-во жилых помещений: 142, E, дом 22, нет, да, да, да, нет, нет, Грузовых лифтов: 0, Год постройки: 1978, Солнечногорская улица, 37.521533, 55.861307
Свяжитесь со мной на счет цены
10 дн.
T55S861307L37S521533T

На карте


Условия сделки

Источник


Старт продаж

Возможно заинтересует