Top.Mail.Ru

Солнечногорская ул., д. 17

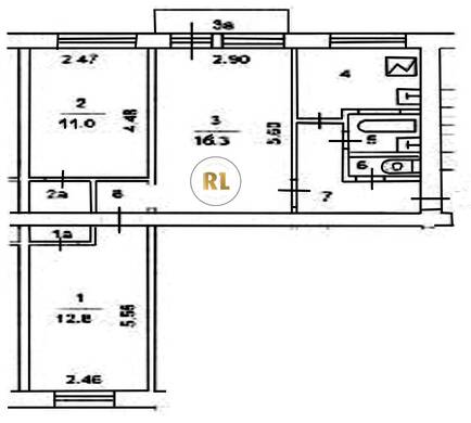
База каталог, Кол-во подъездов: 4, I-511, Москва, Головинский, Пассажирский лифт: 0, От метро: 2270, Северный, да, Наименьшее кол-во этажей: 5, Наибольшее кол-во этажей: 5, Селигерская, Кол-во помещений: 83, Кол-во нежилых помещений: 3, Год ввода в эксплуатацию: 1962, 3-комн, Кол-во жилых помещений: 80, E, дом 17, нет, да, да, нет, нет, нет, Грузовых лифтов: 0, Год постройки: 1962, Солнечногорская улица, 37.519782, 55.861524
Свяжитесь со мной на счет цены
10 дн.
T55S861524L37S519782T

На карте


Условия сделки

Источник


Старт продаж

Возможно заинтересует