Top.Mail.Ru

Вересковая ул., д. 13

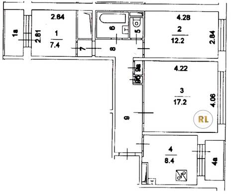
База каталог, Кол-во подъездов: 6, П-30, Москва, Свиблово, Площадь парковки: 0, Пассажирский лифт: 12, От метро: 1190, Северо-Восточный, нет, Наименьшее кол-во этажей: 12, Наибольшее кол-во этажей: 12, Свиблово, Кол-во помещений: 287, Кол-во нежилых помещений: 1, Год ввода в эксплуатацию: 1987, 3-комн, Кол-во жилых помещений: 286, Не присвоен, дом 13, нет, да, да, да, да, нет, Грузовых лифтов: 0, Год постройки: 1987, Вересковая улица, 37.642644, 55.861691
Свяжитесь со мной на счет цены
10 дн.
T55S861691L37S642644T

На карте


Условия сделки

Источник


Старт продаж

Возможно заинтересует