Top.Mail.Ru

Беломорская ул., д. 20, к. 1

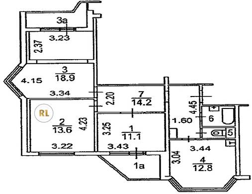
База каталог, Кол-во подъездов: 3, Отсутствует, П-44К, Москва, Левобережный, Площадь парковки: 0, Пассажирский лифт: 3, От метро: 520, Северный, нет, Наименьшее кол-во этажей: 13, Наибольшее кол-во этажей: 17, Беломорская, Кол-во помещений: 179, Кол-во нежилых помещений: 8, Год ввода в эксплуатацию: 2009, 3-комн, Кол-во жилых помещений: 171, В, дом 20, корпус 1, да, да, да, да, да, да, Отсутствует, Грузовых лифтов: 3, Год постройки: 2009, Беломорская улица, 37.475639, 55.861984
Свяжитесь со мной на счет цены
10 дн.
T55S861984L37S475639T

На карте


Условия сделки

Источник


Старт продаж

Возможно заинтересует