Top.Mail.Ru

Беломорская ул., д. 12, к. 1

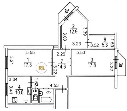
База каталог, Кол-во подъездов: 2, Отсутствует, П-ЗМ-2/16, Москва, Левобережный, Площадь парковки: 0, Пассажирский лифт: 2, От метро: 540, Северный, нет, Наименьшее кол-во этажей: 23, Наибольшее кол-во этажей: 23, Беломорская, Кол-во помещений: 186, Кол-во нежилых помещений: 10, Год ввода в эксплуатацию: 2009, 3-комн, Кол-во жилых помещений: 176, С, дом 12, корпус 1, да, да, да, да, да, да, Отсутствует, Грузовых лифтов: 4, Год постройки: 2009, Беломорская улица, 37.470662, 55.862004
Свяжитесь со мной на счет цены
10 дн.
T55S862004L37S470662T

На карте


Условия сделки

Источник


Старт продаж

Возможно заинтересует