Top.Mail.Ru

улица Санникова, д. 11, к. 1

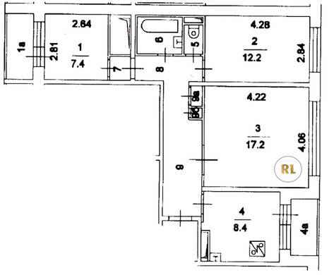
База каталог, Кол-во подъездов: 5, П-30, Москва, Отрадное, Площадь парковки: 0, Пассажирский лифт: 12, От метро: 610, Северо-Восточный, нет, Наименьшее кол-во этажей: 12, Наибольшее кол-во этажей: 12, Отрадное, Кол-во помещений: 239, Кол-во нежилых помещений: 1, Год ввода в эксплуатацию: 1983, 3-комн, Кол-во жилых помещений: 238, Не присвоен, дом 11, корпус 1, нет, да, да, да, да, да, Имеется, Грузовых лифтов: 0, Год постройки: 1983, улица Санникова, 37.596713, 55.862075
Свяжитесь со мной на счет цены
10 дн.
T55S862075L37S596713T

На карте


Условия сделки

Источник


Старт продаж

Возможно заинтересует