Top.Mail.Ru

Каргопольская ул., д. 10

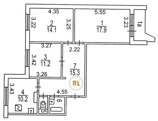
База каталог, Кол-во подъездов: 5, П-44, Москва, Отрадное, Площадь парковки: 0, Пассажирский лифт: 5, От метро: 780, Северо-Восточный, нет, Наименьшее кол-во этажей: 17, Наибольшее кол-во этажей: 17, Отрадное, Кол-во помещений: 343, Кол-во нежилых помещений: 5, Год ввода в эксплуатацию: 1983, 3-комн, Кол-во жилых помещений: 338, С, дом 10, нет, да, да, да, да, да, Грузовых лифтов: 5, Год постройки: 1983, Каргопольская улица, 37.592752, 55.862358
Свяжитесь со мной на счет цены
10 дн.
T55S862358L37S592752T

На карте


Условия сделки

Источник


Старт продаж

Возможно заинтересует