Top.Mail.Ru

Солнечногорская ул., д. 21

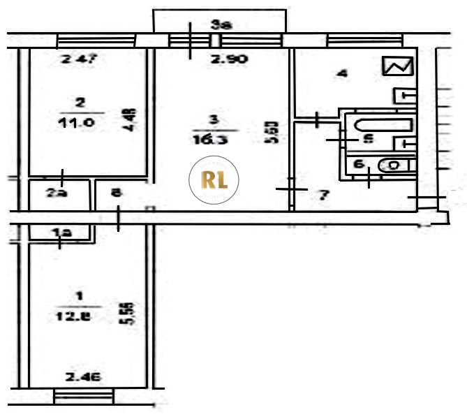
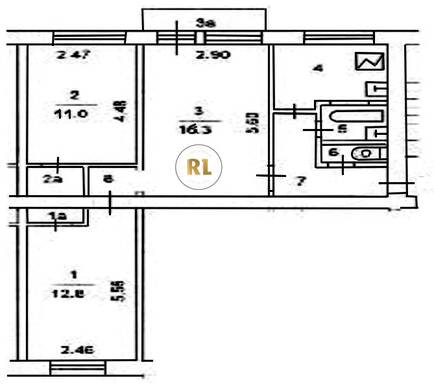
База каталог, Кол-во подъездов: 4, I-511, Москва, Головинский, Пассажирский лифт: 0, От метро: 2230, Северный, да, Наименьшее кол-во этажей: 5, Наибольшее кол-во этажей: 5, Селигерская, Кол-во помещений: 80, Кол-во нежилых помещений: 0, Год ввода в эксплуатацию: 1963, 3-комн, Кол-во жилых помещений: 80, F, дом 21, нет, да, да, нет, нет, нет, Грузовых лифтов: 0, Год постройки: 1963, Солнечногорская улица, 37.520932, 55.862409
Свяжитесь со мной на счет цены
10 дн.
T55S862409L37S520932T

На карте


Условия сделки

Источник


Старт продаж

Возможно заинтересует