Top.Mail.Ru

улица Декабристов, д. 20, к. 1

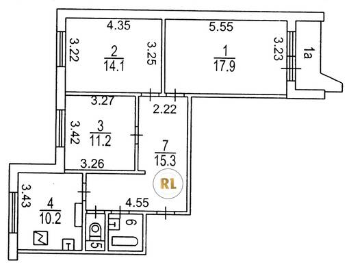
База каталог, Кол-во подъездов: 5, П-44, Москва, Отрадное, Площадь парковки: 0, Пассажирский лифт: 5, От метро: 179, Северо-Восточный, нет, Наименьшее кол-во этажей: 17, Наибольшее кол-во этажей: 17, Отрадное, Кол-во помещений: 333, Кол-во нежилых помещений: 12, Год ввода в эксплуатацию: 1989, 3-комн, Кол-во жилых помещений: 321, Не присвоен, дом 20, корпус 1, да, да, да, да, да, да, Имеется, Грузовых лифтов: 5, Год постройки: 1989, улица Декабристов, 37.606954, 55.863030
Свяжитесь со мной на счет цены
10 дн.
T55S863030L37S606954T

На карте


Условия сделки

Источник


Старт продаж

Возможно заинтересует