Top.Mail.Ru

Каргопольская ул., д. 14, к. 1

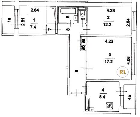
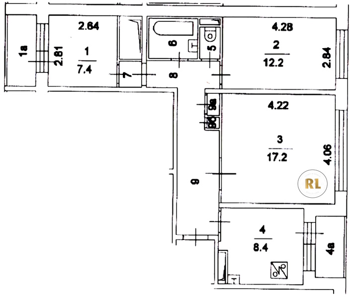
База каталог, Кол-во подъездов: 4, П-30, Москва, Отрадное, Площадь парковки: 0, Пассажирский лифт: 0, От метро: 770, Северо-Восточный, нет, Наименьшее кол-во этажей: 12, Наибольшее кол-во этажей: 12, Отрадное, Кол-во помещений: 188, Кол-во нежилых помещений: 12, Год ввода в эксплуатацию: 1983, 3-комн, Кол-во жилых помещений: 176, Не присвоен, дом 14, корпус 1, нет, да, да, да, да, да, Имеется, Грузовых лифтов: 8, Год постройки: 1983, Каргопольская улица, 37.593021, 55.863606
Свяжитесь со мной на счет цены
10 дн.
T55S863606L37S593021T

На карте


Условия сделки

Источник


Старт продаж

Возможно заинтересует