Top.Mail.Ru

улица Свободы, д. 87

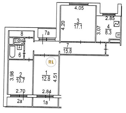
База каталог, Кол-во подъездов: 2, Имеется, П-55, Москва, Северное Тушино, Площадь парковки: 0, Пассажирский лифт: 4, От метро: 1010, Северо-Западный, нет, Наименьшее кол-во этажей: 12, Наибольшее кол-во этажей: 12, Планерная, Кол-во помещений: 93, Кол-во нежилых помещений: 5, Год ввода в эксплуатацию: 1989, 3-комн, Кол-во жилых помещений: 88, Не присвоен, дом 87, нет, да, да, да, да, да, Имеется, Грузовых лифтов: 0, Год постройки: 1989, улица Свободы, 37.446470, 55.865354
Свяжитесь со мной на счет цены
10 дн.
T55S865354L37S446470T

На карте


Условия сделки

Источник


Старт продаж

Возможно заинтересует