Top.Mail.Ru

улица Чичерина, д. 8, к. 1

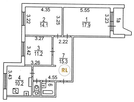
База каталог, Кол-во подъездов: 10, П-44/16, Москва, Бабушкинский, Пассажирский лифт: 10, От метро: 890, Северо-Восточный, да, Наименьшее кол-во этажей: 1, Наибольшее кол-во этажей: 16, Бабушкинская, Кол-во помещений: 639, Кол-во нежилых помещений: 2, Год ввода в эксплуатацию: 1982, 3-комн, Кол-во жилых помещений: 637, Не присвоен, дом 8, корпус 1, нет, да, да, да, да, да, Грузовых лифтов: 10, Год постройки: 1982, улица Чичерина, 37.653909, 55.865541
Свяжитесь со мной на счет цены
10 дн.
T55S865541L37S653909T

На карте


Условия сделки

Источник


Старт продаж

Возможно заинтересует