Top.Mail.Ru

Северный бульвар, д. 3, к. 2

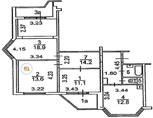
База каталог, Кол-во подъездов: 3, П-44T, Москва, Отрадное, Площадь парковки: 0, Пассажирский лифт: 3, От метро: 163, Северо-Восточный, нет, Наименьшее кол-во этажей: 17, Наибольшее кол-во этажей: 17, Отрадное, Кол-во помещений: 196, Кол-во нежилых помещений: 4, Год ввода в эксплуатацию: 2003, 3-комн, Кол-во жилых помещений: 192, Не присвоен, дом 3, корпус 2, да, да, да, да, да, да, Имеется, Грузовых лифтов: 3, Год постройки: 2003, Северный бульвар, 37.605885, 55.865581
Свяжитесь со мной на счет цены
10 дн.
T55S865581L37S605885T

На карте


Условия сделки

Источник


Старт продаж

Возможно заинтересует