Top.Mail.Ru

Северный бульвар, д. 3, к. 1

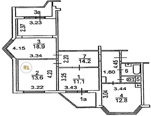
База каталог, Кол-во подъездов: 4, П-44T, Москва, Отрадное, Площадь парковки: 0, Пассажирский лифт: 4, От метро: 310, Северо-Восточный, нет, Наименьшее кол-во этажей: 17, Наибольшее кол-во этажей: 17, Отрадное, Кол-во помещений: 261, Кол-во нежилых помещений: 5, Год ввода в эксплуатацию: 2003, 3-комн, Кол-во жилых помещений: 256, Не присвоен, дом 3, корпус 1, да, да, да, да, да, да, Имеется, Грузовых лифтов: 4, Год постройки: 2003, Северный бульвар, 37.604610, 55.866111
Свяжитесь со мной на счет цены
10 дн.
T55S866111L37S604610T

На карте


Условия сделки

Источник


Старт продаж

Возможно заинтересует