Top.Mail.Ru

Енисейская ул., д. 15

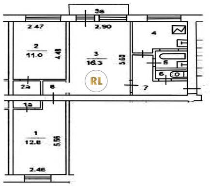
База каталог, Кол-во подъездов: 4, I-511-4/М22БН, Москва, Бабушкинский, Пассажирский лифт: 0, От метро: 212, Северо-Восточный, да, Наименьшее кол-во этажей: 1, Наибольшее кол-во этажей: 5, Бабушкинская, Кол-во помещений: 82, Кол-во нежилых помещений: 2, Год ввода в эксплуатацию: 1962, 3-комн, Кол-во жилых помещений: 80, Не присвоен, дом 15, да, да, да, да, да, да, Грузовых лифтов: 0, Год постройки: 1962, Енисейская улица, 37.662371, 55.866667
Свяжитесь со мной на счет цены
10 дн.
T55S866667L37S662371T

На карте


Условия сделки

Источник


Старт продаж

Возможно заинтересует