Top.Mail.Ru

Ленская ул., д. 23

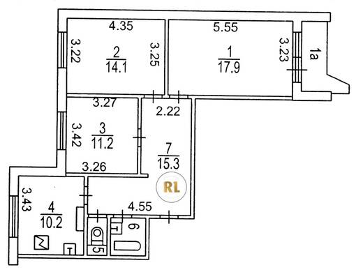
База каталог, Кол-во подъездов: 9, П-44, Москва, Бабушкинский, Пассажирский лифт: 9, От метро: 640, Северо-Восточный, да, Наименьшее кол-во этажей: 1, Наибольшее кол-во этажей: 16, Бабушкинская, Кол-во помещений: 575, Кол-во нежилых помещений: 2, Год ввода в эксплуатацию: 1983, 3-комн, Кол-во жилых помещений: 573, Не присвоен, дом 23, нет, да, да, да, да, да, Грузовых лифтов: 9, Год постройки: 1983, Ленская улица, 37.655257, 55.867288
26 500 000 Р
10 дн.
T55S867288L37S655257T
+

На карте


Условия сделки

Источник


Старт продаж

Возможно заинтересует