Top.Mail.Ru

Ярославское шоссе, д. 118, к. 1

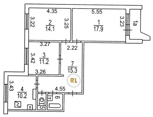
База каталог, Кол-во подъездов: 2, Имеется, П-44, Москва, Ярославский, Площадь парковки: 0, Пассажирский лифт: 2, От метро: 3600, Северо-Восточный, нет, Наименьшее кол-во этажей: 16, Наибольшее кол-во этажей: 16, Бабушкинская, Кол-во помещений: 125, Кол-во нежилых помещений: 2, Год ввода в эксплуатацию: 1980, 3-комн, Кол-во жилых помещений: 123, Не присвоен, дом 118, корпус 1, нет, нет, нет, нет, нет, нет, Имеется, Грузовых лифтов: 2, Год постройки: 1980, Ярославское шоссе, 37.710216, 55.867763
Свяжитесь со мной на счет цены
10 дн.
T55S867763L37S710216T

На карте


Условия сделки

Источник


Старт продаж

Возможно заинтересует