Top.Mail.Ru

Заповедная ул., д. 16, к. 2

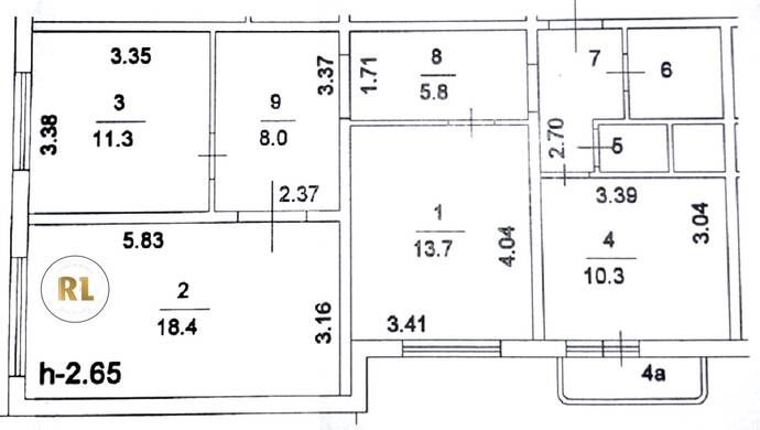
База каталог, Кол-во подъездов: 3, Имеется, КОПЭ, Москва, Южное Медведково, Площадь парковки: 0, Пассажирский лифт: 3, От метро: 1830, Северо-Восточный, нет, Наименьшее кол-во этажей: 10, Наибольшее кол-во этажей: 16, Свиблово, Кол-во помещений: 149, Кол-во нежилых помещений: 5, Год ввода в эксплуатацию: 2011, 3-комн, Кол-во жилых помещений: 144, Не присвоен, дом 16, корпус 2, нет, да, да, да, нет, нет, Имеется, Грузовых лифтов: 3, Год постройки: 2011, Заповедная улица, 37.637650, 55.867935
Свяжитесь со мной на счет цены
10 дн.
T55S867935L37S637650T

На карте


Условия сделки

Источник


Старт продаж

Возможно заинтересует