Top.Mail.Ru

улица Ивана Сусанина, д. 6, к. 3

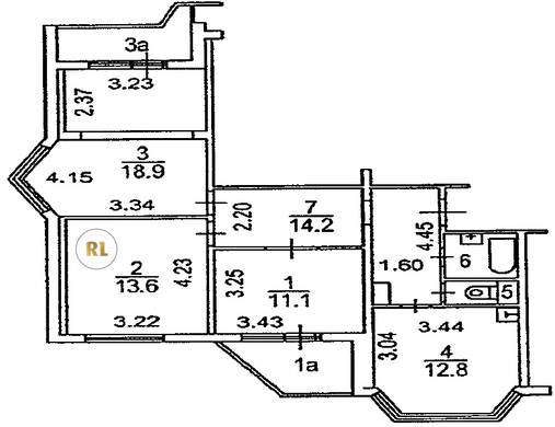
База каталог, Кол-во подъездов: 3, П-44T, Москва, Западное Дегунино, Пассажирский лифт: 3, От метро: 1520, Северный, да, Наименьшее кол-во этажей: 14, Наибольшее кол-во этажей: 14, Селигерская, Кол-во помещений: 169, Кол-во нежилых помещений: 7, Год ввода в эксплуатацию: 2005, 3-комн, Кол-во жилых помещений: 162, D, дом 6, корпус 3, нет, да, да, да, да, нет, Грузовых лифтов: 3, Год постройки: 2005, улица Ивана Сусанина, 37.528046, 55.867980
Свяжитесь со мной на счет цены
10 дн.
T55S867980L37S528046T

На карте


Условия сделки

Источник


Старт продаж

Возможно заинтересует