Top.Mail.Ru

улица Менжинского, д. 23, к. 2

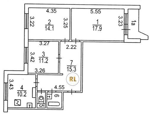
База каталог, Кол-во подъездов: 3, П-44, Москва, Бабушкинский, Пассажирский лифт: 3, От метро: 280, Северо-Восточный, да, Наименьшее кол-во этажей: 1, Наибольшее кол-во этажей: 17, Бабушкинская, Кол-во помещений: 206, Кол-во нежилых помещений: 3, Год ввода в эксплуатацию: 1989, 3-комн, Кол-во жилых помещений: 203, Не присвоен, дом 23, корпус 2, да, да, да, да, да, да, Грузовых лифтов: 3, Год постройки: 1989, улица Менжинского, 37.659488, 55.869117
Свяжитесь со мной на счет цены
10 дн.
T55S869117L37S659488T

На карте


Условия сделки

Источник


Старт продаж

Возможно заинтересует