Top.Mail.Ru

улица Менжинского, д. 25

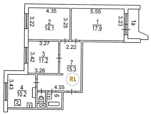
База каталог, Кол-во подъездов: 2, Отсутствует, П-44, Москва, Бабушкинский, Площадь парковки: 0, Пассажирский лифт: 2, От метро: 360, Северо-Восточный, нет, Наименьшее кол-во этажей: 17, Наибольшее кол-во этажей: 17, Бабушкинская, Кол-во помещений: 565, Кол-во нежилых помещений: 439, Год ввода в эксплуатацию: 1988, 3-комн, Кол-во жилых помещений: 126, В+, дом 25, да, да, да, да, да, да, Имеется, Грузовых лифтов: 2, Год постройки: 1988, улица Менжинского, 37.658536, 55.869571
Свяжитесь со мной на счет цены
10 дн.
T55S869571L37S658536T

На карте


Условия сделки

Источник


Старт продаж

Возможно заинтересует