Top.Mail.Ru

Зеленоградская ул., д. 17, к. 1

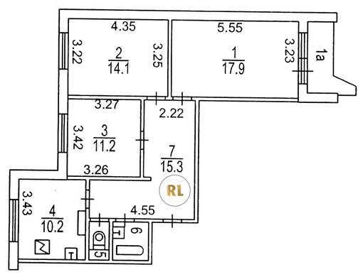
База каталог, Кол-во подъездов: 5, Отсутствует, П-44, Москва, Ховрино, Площадь парковки: 0, Пассажирский лифт: 5, От метро: 1580, Северный, нет, Наименьшее кол-во этажей: 17, Наибольшее кол-во этажей: 17, Ховрино, Кол-во помещений: 338, Кол-во нежилых помещений: 14, Год ввода в эксплуатацию: 1995, 3-комн, Кол-во жилых помещений: 324, E, дом 17, корпус 1, нет, да, да, да, да, нет, Имеется, Грузовых лифтов: 5, Год постройки: 1995, Зеленоградская улица, 37.499713, 55.870299
Свяжитесь со мной на счет цены
10 дн.
T55S870299L37S499713T

На карте


Условия сделки

Источник


Старт продаж

Возможно заинтересует